| Adres: | Slottuin 168, 6642 DH Beuningen |
| Prijs | € 440.000,- k.k. |
| Type object | Woonhuis, eengezinswoning, tussenwoning |
| Perceeloppervlakte | 138 m² |
| Woonoppervlakte | 109,4 m² |
| Aanvaarding | In overleg |
| Status | Verkocht |
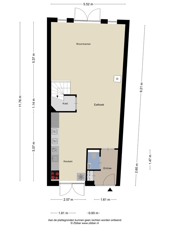
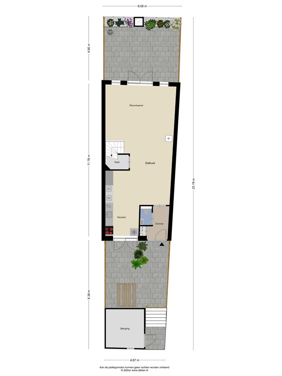
Moderne ruime woning met vrij uitzicht over waterpartij, zonnige tuin en vrijstaande berging. In de geliefde wijk “Beuningse Plas” ligt, in het bijzondere project “De Slottuin”, deze sfeervolle tussenwoning met berging. De karakteristieke cirkellayout, stadsmuren en fraaie doorgangen geven deze woonomgeving een charmant, bijna dorps karakter. De woning ligt tegen een lichte verhoging, met aan de achterzijde een prachtig weids uitzicht over het water, een heerlijke plek om tot rust te komen en aan de voorzijde een mooie groenstrook en parkeergelegenheid. Deze moderne zogenaamde dijkwoning voldoet volledig aan de eisen van deze tijd. De woning beschikt over een moderne keuken, een woonkamer met openslaande deuren, drie slaapkamers, een ruime zolderverdieping met mogelijkheid voor een vierde slaapkamer, een nette badkamer en 12 zonnepanelen voor een lagere energierekening. Alles is tot in de puntjes onderhouden — verhuizen kan hier zónder te klussen.
Toegang via de patiotuin aan voorzijde. Entree met garderobe, meterkast en toiletruimte, voorzien van een wandcloset en fontein. De moderne keuken met ingebouwde koelkast, inductie kookplaat, afzuigkap, afwasmachine, oven en koffieapparaat met warmhoud la voor een heerlijke kop koffie op een perfecte temperatuur. Dankzij de openslaande deuren naar het terras baadt deze ruimte in natuurlijk licht. De ruime woonkamer heeft een fraai uitzicht over de waterpartij en openslaande deuren naar het terras aan de achterzijde. De sfeervolle pelletkachel zorgt voor extra warmte en gezelligheid. De fraaie plavuizenvloer met vloerverwarming maakt het geheel compleet.
Op de eerste verdieping bevinden zich drie slaapkamers, alle voorzien van een mooie houten vloer. Bovendien zijn de slaapkamers uitgerust met rolluiken. De moderne badkamer is uitgerust met een inloopdouche, ligbad, toilet en wastafel.
Via een vaste trap bereik je de verrassend ruime zolderverdieping, die ingericht kan worden als vierde slaapkamer. Hier bevindt zich tevens een wasruimte met de aansluitingen voor wasmachine en droger, de cv-installatie (2020) en het WTW-ventilatiesysteem. Een dakraam zorgt voor volop daglicht. Achter de knieschotten bevindt zich extra bergruimte.
De achtertuin ligt op vrijwel het westen en is onderhoudsvriendelijk aangelegd met bestrating en een zonnig terras, voorzien van een zonnescherm en een tuinhaard. Hier geniet je van privacy, terwijl het uitzicht over de brede waterpartij behouden blijft — een heerlijke plek om te ontspannen, eendjes te voeren of een bootje voorbij te zien varen. De voortuin is eveneens verzorgd aangelegd met bestrating en beplanting. Hier is het in de ochtend heerlijk genieten van het zonnetje en de rust. De vrijstaande stenen berging is deels geïntegreerd in de karakteristieke stadsmuur van de Slottuin.
- Bouwjaar: 2006 - Energielabel: A - 12 zonnepanelen - HR-ketel 2020 (type Intergas) - Onlangs al het houtwerk buiten geschilderd - De pelletkachel is ter overname en het rookkanaal kan in overleg afgetimmerd of weggehaald worden - De ramen zijn voorzien van horren die achterblijven, de hordeuren zijn ter overname - Fraai vrij uitzicht over groenstrook en water - Rustige, kindvriendelijke ligging Kortom Een moderne dijkwoning op een unieke, waterrijke locatie in Beuningen. Perfect onderhouden, sfeervol afgewerkt en voorzien van alle gemakken van nu. Een woning die rust, comfort en stijl moeiteloos combineert. Enthousiast geworden? Bekijk de woning live en ervaar zelf het comfort, de ruimte en de fijne ligging. Extra informatie en het biedproces zijn te vinden via de website van de makelaar onder de knop ‘Breng een bod uit’ – vrijblijvend en zonder verplichtingen.
| Referentienummer | 05357 |
| Vraagprijs | € 440.000,- k.k. |
| Elektra | € 60,- |
| Gas | € 100,- |
| Inrichting | Ja |
| Inrichting | Gestoffeerd |
| Status | Verkocht |
| Aanvaarding | In overleg |
| Aangeboden sinds | Vrijdag 31 oktober 2025 |
| Laatste wijziging | Dinsdag 18 november 2025 |
| Type object | Woonhuis, eengezinswoning, tussenwoning |
| Soort bouw | Bestaande bouw |
| Bouwperiode | 2006 |
| Dakbedekking | Dakpannen |
| Type dak | Zadeldak |
| Isolatievormen | Dakisolatie Dubbel glas HR-glas Muurisolatie Spouwmuren Vloerisolatie Volledig geïsoleerd |
| Perceeloppervlakte | 138 m² |
| Woonoppervlakte | 109,4 m² |
| Woonkameroppervlakte | 35,94 m² |
| Keukenoppervlakte | 13,03 m² |
| Inhoud | 444 m³ |
| Oppervlakte overige inpandige ruimten | 16,1 m² |
| Oppervlakte externe bergruimte | 8,9 m² |
| Aantal bouwlagen | 3 |
| Aantal kamers | 5 (waarvan 4 slaapkamers) |
| Aantal badkamers | 1 (en 1 apart toilet) |
| Ligging | Aan water Beschutte ligging Dichtbij openbaar vervoer In woonwijk Vrij uitzicht |
| Type | Voortuin |
| Oriëntering | Oosten |
| Staat | Prachtig aangelegd |
| Tuin 2 - Type | Achtertuin |
| Tuin 2 - Hoofdtuin | Ja |
| Tuin 2 - Oriëntering | West |
| Tuin 2 - Staat | Prachtig aangelegd |
| Energielabel | A |
| Warmtebron | Gas |
| Bouwjaar | 2020 |
| Combiketel | Ja |
| Eigendom | Eigendom |
| Warm water | CV-ketel |
| Verwarmingssysteem | Centrale verwarming Pelletkachel Vloerverwarming (gedeeltelijk) Warmterecuperatiesysteem |
| Ventilatie methode | Balansventilatie |
| Keukenvoorzieningen | Inbouwapparatuur |
| Badkamervoorzieningen | Inloopdouche Ligbad Wastafel |
| Heeft kabel-tv | Ja |
| Heeft een rookkanaal | Ja |
| Glasvezelaansluiting aanwezig | Ja |
| Tuin aanwezig | Ja |
| Beschikt over een internetverbinding | Ja |
| Heeft rolluiken | Ja |
| Heeft schuur/berging | Ja |
| Heeft een dakraam | Ja |
| Heeft zonwering | Ja |
| Heeft zonnepanelen | Ja |
| Kadastrale aanduiding | Beuningen F 2004 |
| Perceeloppervlakte | 138 m² |
| Omvang | Geheel perceel |
| Eigendomsituatie | Eigen grond |